Skaret

/ Hemsedal Skisenter

Antal personer: 16+3
Antal kvm: 220
Antal soverum: 6
Wi-Fi: Ja
Dyr tilladt: Ja
Pejs/brændeovn: Pejs
Antal bad: 3
Antal toiletter: 4
Sauna: 1
Vaskemaskine: Ja

Skaret. Storhytte ligger i Skarsnuten hytteområde. Spektakulær lækker, moderne stilet storhytte med store glasfacader og udsigt mod Hemsedal Skisenter og SkiStar Logde Hemsedal. Blot 400 m til transportløjpe, som fører ned til Hemsedal Skisenter. Ved Skarsnuten Hotel finder du restaurant, bar og lækker tagterrasse med udsigt over Hemsedal skiområde og transportløjpe ned til hytten.  

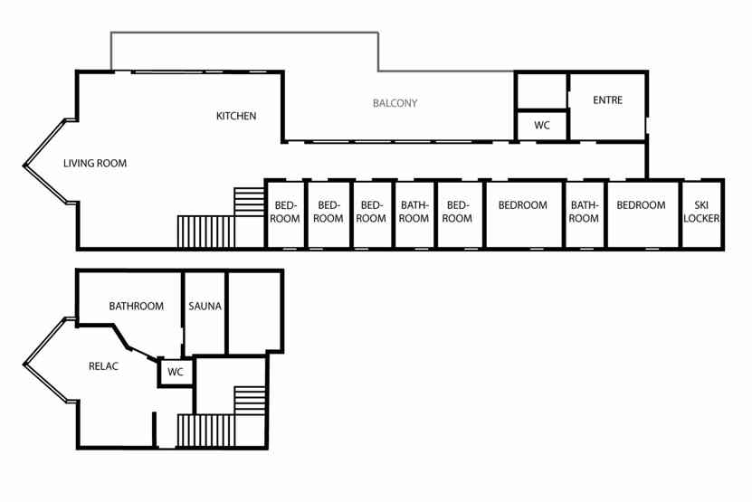
Skaret er en lys og moderne hytte, fordelt på 2 etager. Hytte, 16+3 sengepladser, 220 m², alrum med køkkenafdeling, TV, pejs som drejer 360 grader rundt. 6 soveværelser, 3 bruser, 4 WC, 1 sauna. Vaskerum med vaskemaskine og tørretumbler. Tørreskab, 1 højstol, 1 barneseng. Udendørs boblebad lejes mod betaling. inkl. SkiStar Premium som indeholder følgende: opredte senge, Håndklæder, slutrengøring, brænde, husholdningsprodukter, bl.a. krydderier, køkkenrulle, toiletpapir, håndsæde og opvaskesæbe. 

Afstand til nærmeste skilift 500 meter, nærmeste bakke 400 meter, langrendsløjper 800 meter. Afhængigt af sneforholdene kan afstanden til lift/bakke variere.

Køkken:
Indeholder bl.a. komfur med ovn, køleskab m/fryser, dobbelt opvaskemaskine, mikroovn

Badeværelser:
Bad 1:
WC, 2 brusere, boblebadekar, sauna. Bad 2: WC, bruser. Bad 3: WC, bruser. Bad 4: WC.

Soveværelser:
Soveværelse 1: 1 dobbeltseng + 1 køjeseng. Soveværelse 2: 1 dobbeltseng + 1 enkeltseng. Soveværelse 31 familie køjeseng med 150 cm bred underkøje. Soveværelse 4: 1 familie køjeseng med 120 cm bred underkøje. Soveværelse 5: 1 familie køjeseng med 120 cm bred underkøje. Soveværelse 61 familie køjeseng med 120 cm bred underkøje.

Vigtig info: Husdyr er tilladt, rygning ikke tilladt. For at kunne bestille denne bolig gæsten være fyldt 18 år. Alle i selskabet være fyldt 18 år. Gælder ikke børn i selskab med en voksen. Den ansvarlige for bestillingen må bo i enheden under hele opholdet. Legitimering ved ankomst. Ved glat føre, skal snekæder/pigdæk bruges for at undgå stop og kødannelser. 

Ekstra info: TV, pejs som kan drejes 360 grader rundt. Brænde er inkluderet i prisen. Afslapningsafdeling. Vaskerum med vaskemaskine og tørretumbler, Tørrerum/skab. Veranda. 1 højstol og en barneseng er inkluderet i prisen. Behøver I flere, skal de bestilles på forhånd.
Udendørs boblebad kan lejes mod betaling (skal forudbestilles). BEMÆRK! På grund af krav fra Hemsedal Kommune er alle boblebade lukket for rengøring og test torsdage og søndage. Undtagelse ved ophold søndag-søndag, hvor det kun er lukket om søndagen. Boblebadet åbner fredag senest kl. 17.00, og mandag senest kl. 14.00. Yderligere oplysninger og vilkår for brug af boblebad findes i boligen.
Adgang til fri Wi-Fi (med forbehold for eventuelle forstyrrelser hos bredbåndsleverandøren).


Køkken

Komfur med ovn : Ja
Køleskab : Ja
Fryser : Ja
Opvaskemaskine : Ja
Mikroovn : Ja

Opholdsrum

Pejs/brændeovn : Pejs
TV : Ja
Wi-Fi : Ja

Badeværelser

Antal bad : 3
Antal toiletter : 4
Sauna : 1

Ekstra information

M.o.h.
Tørreskab : Ja
Vaskemaskine : Ja
Tørretumbler : Ja
Balkon/terrasse : Balkon
Dyr tilladt : Ja
Indkøb : 3000 m
Ladestation : Skistar Lodge Hemsedal, betaling
Parkering

Ekstra information

M.o.h.
Tørreskab : Ja
Vaskemaskine : Ja
Tørretumbler : Ja
Balkon/terrasse : Balkon
Dyr tilladt : Ja
Indkøb : 3000 m
Ladestation : Skistar Lodge Hemsedal, betaling
Parkering

Vinterinformation

Lift : 500 m
Pist/løjpe : 400 m
Langrend : 800 m
Ski in/ Ski out