Fjellandsbyen Hemsedal B315

/ Hemsedal Skisenter

Antal personer: 8
Antal kvm: 111
Antal soverum: 4
Wi-Fi: Ja
Dyr tilladt: Nej
Pejs/brændeovn: Nej
Antal bad: 2
Antal toiletter: 2
Sauna: Ja
Ski in / Ski-out: Nej

Fjellandsbyen Hemsedal B315. Lejlighed med god beliggenhed i Hemsedal Skisenter. Perfekt til mindre familier eller vennepar. Adgang til adskillige faciliteter indenfor gåafstand, som restauranter med bar, sportsbutik, skiudlejning, skiskole og supermarked.

Fjellandsbyen Hemsedal B315 er en lys og praktisk lejlighed med balkon på på 3. etage.
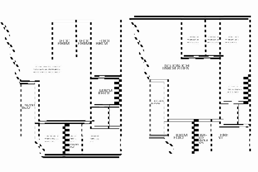
Lejlighed, 8 sengepladser, 111 m², alrum med køkkenafdeling, TV, 4 soveværelser, 1 alkove, 2 brusere, 2 WC, sauna, skiopbevaring og tørrerum.

Afstand til nærmeste lift 250 meter, nærmeste bakke 250 meter, langrendsløjpe 100 meter. Afhængigt af sneforholdene kan afstanden til lift/bakke variere.

Køkken:
Indeholder bl.a. opvaskemaskine, komfur m/ovn, køleskab m/fryser.

Badeværelser:
Bad 1:
WC, bruser og sauna. Bad 2: WC, bruser.

Soveværelser:
Soveværelse 1: 1 dobbeltseng (180 cm x 200 cm). Soveværelse 2: 1 dobbeltseng (150 cm x 200 cm).  Soveværelse 3: 1 køjeseng (90 cm x 200 cm). Soveværelse 3: 1 køjeseng (90 cm x 200 cm).

Vigtig info: Husdyr ikke tilladt, rygning ikke tilladt. Støj fra afterski/natklub og natteliv kan forventes. For at kunne bestille denne bolig gæsten være fyldt 18 år. Alle i selskabet være fyldt 18 år. Gælder ikke børn i selskab med en voksen. Den ansvarlige for bestillingen må bo i enheden under hele opholdet. Legitimering ved ankomst.

Ekstra info: TV, balkon (der skovles ikke sne), havemøbler. Elevator findes i huset. Parkering i garage mod betaling, adgang til fælles elbilopladere med type 2 stik mod betaling. Skiopbevaring med skotørrer findes i huset.
Adgang til fri Wi-Fi (med forbehold for eventuelle forstyrrelser hos bredbåndsleverandøren).


Køkken

Komfur med ovn : Ja
Køleskab : Ja
Fryser : Ja
Opvaskemaskine : Ja
Mikroovn : Nej

Opholdsrum

Pejs/brændeovn : Nej
TV
Wi-Fi : Ja

Badeværelser

Antal bad : 2
Antal toiletter : 2
Sauna : Ja

Ekstra information

M.o.h.
Tørreskab : Nej
Vaskemaskine : Nej
Tørretumbler
Balkon/terrasse : Ja
Dyr tilladt : Nej
Indkøb : 250 m
Ladestation : I området - type 2 stik mod betaling
Parkering

Ekstra information

M.o.h.
Tørreskab : Nej
Vaskemaskine : Nej
Tørretumbler
Balkon/terrasse : Ja
Dyr tilladt : Nej
Indkøb : 250 m
Ladestation : I området - type 2 stik mod betaling
Parkering

Vinterinformation

Lift : 250 m
Pist/løjpe : 250 m
Langrend : 250 m
Ski in/ Ski out : Nej