*NY* Sörgårdarna, L57

/ Vemdalsskalet

Antal personer: 8
Antal kvm: 80
Antal soverum: 4
Wi-Fi: Ja
Dyr tilladt: Ja
Pejs/brændeovn: Nej
Antal toiletter: 2
Sauna: Ja
Balkon/terrasse: Nej
Tørreskab: Ja
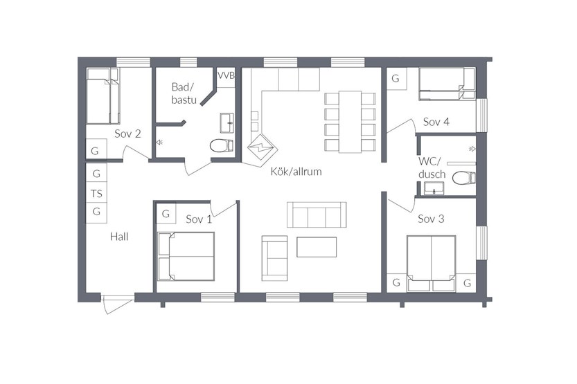
Sörgårdarna ligger i Vemdalsskalet. Lejlighed i stueetage, 8 sengepladser, 80 kvm, alrum med køkkenafdeling, 4 soveværelse, 2 brusere, 2 WC, sauna.

Faciliteter

Køkken

Køkkenet indeholder kombineret mikro-/normal ovn, køleskab med fryser, komfur, opvaskemaskine.

Badeværelser

Badeværelse 1 = bruser/WC/sauna. Badeværelse 2 = bruser/WC.

Soveværelser

Soveværelse-1 = 1 dobbeltseng. Soveværelse-2 = 1 dobbeltseng. Soveværelse-3 = 1 køjeseng med 120 cm bred underkøje. Soveværelse-4 = 1 køjeseng med 120 cm bred underkøje.

Vigtig info

Husdyr tilladt, rygning ikke tilladt.
Alle i selskabet skal være fyldt 18 år for at bo i boligen. Identifikation vises ved ankomst. Aldersgrænsen gælder ikke børn i selskab med deres forældre, afstand til lift/bakke ca 100 m, Afhængigt af sneforholdene kan afstanden til lift/bakke variere.



Ekstra info

Stue med TV, lille køkkenafdeling. 1 højstol, 1 barneseng, vaskemaskine, tørreskab, skiopbevaring, 1 parkeringsplads, adgang til fælles elbilopladere med type 2 stik mod betaling.



I denne indkvartering er SkiStar Free WiFi.


Køkken

Komfur med ovn
Køleskab
Fryser : Ja
Opvaskemaskine : Ja
Mikroovn : Ja

Opholdsrum

Pejs/brændeovn : Nej
TV
Wi-Fi : Ja

Badeværelser

Antal bad
Antal toiletter : 2
Sauna : Ja

Ekstra information

M.o.h.
Tørreskab : Ja
Vaskemaskine
Tørretumbler
Balkon/terrasse : Nej
Dyr tilladt : Ja
Indkøb
Ladestation
Parkering

Ekstra information

M.o.h.
Tørreskab : Ja
Vaskemaskine
Tørretumbler
Balkon/terrasse : Nej
Dyr tilladt : Ja
Indkøb
Ladestation
Parkering

Vinterinformation

Lift : 100
Pist/løjpe
Langrend
Ski in/ Ski out