*NY* Nedre Kullstigen 1A, KF310

/ Vemdalsskalet

Antal personer: 10
Antal kvm: 95
Antal soverum: 5
Wi-Fi: Ja
Dyr tilladt: Ja
Pejs/brændeovn: Nej
Antal toiletter: 2
Sauna: Ja
Balkon/terrasse: Ja
Tørreskab: Ja
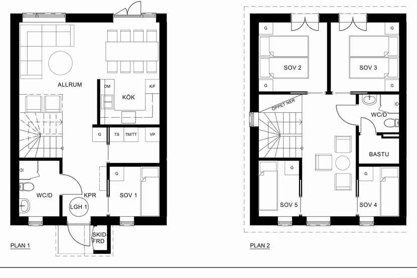
Klockarporten ligger i Vemdalsskalet. Lejlighed i 2 etage, 10 sengepladser, 95 kvm, alrum med køkkenafdeling, 5 soveværelse, 2 brusere, 2 WC, sauna.

Faciliteter

Køkken

Køkkenet indeholder komfur, ovn, køleskab, fryser, opvaskemaskine, mikro.

Badeværelser

Badeværelse 1 = bruser/WC/sauna. Badeværelse 2 = bruser/WC.

Soveværelser

Soveværelse-1 = 1 dobbeltseng. Soveværelse-2 = 1 dobbeltseng. Soveværelse-3 = 1 køjeseng. Soveværelse-4 = 1 køjeseng. Soveværelse-5 = 1 køjeseng.

Vigtig info

Husdyr tilladt, rygning ikke tilladt.
Alle i selskabet skal være fyldt 18 år for at bo i boligen. Identifikation vises ved ankomst. Aldersgrænsen gælder ikke børn i selskab med deres forældre, afstand til lift/bakke ca 300 m, Afhængigt af sneforholdene kan afstanden til lift/bakke variere.



Ekstra info

Stue med lille køkkenafdeling, TV. vaskemaskine, tørretumbler, tørreskab, 2 barnesenge, 1 højstol, skiopbevaring, altan, 2 parkeringspladser, adgang til fælles elbilopladere med type 2 stik mod betaling.



Adgang til fri WiFi (med forbehold for eventuelle forstyrrelser hos bredbåndsleverandøren).


Køkken

Komfur med ovn
Køleskab
Fryser : Ja
Opvaskemaskine : Ja
Mikroovn : Ja

Opholdsrum

Pejs/brændeovn : Nej
TV
Wi-Fi : Ja

Badeværelser

Antal bad
Antal toiletter : 2
Sauna : Ja

Ekstra information

M.o.h.
Tørreskab : Ja
Vaskemaskine
Tørretumbler
Balkon/terrasse : Ja
Dyr tilladt : Ja
Indkøb
Ladestation
Parkering

Ekstra information

M.o.h.
Tørreskab : Ja
Vaskemaskine
Tørretumbler
Balkon/terrasse : Ja
Dyr tilladt : Ja
Indkøb
Ladestation
Parkering

Vinterinformation

Lift : 300
Pist/løjpe
Langrend
Ski in/ Ski out