*NY* Tysta Stigen 8A, KF305

/ Vemdalsskalet

Antal personer: 10
Antal kvm: 107
Antal soverum: 4
Wi-Fi: Ja
Dyr tilladt: Ja
Pejs/brændeovn: Ja
Antal toiletter: 2
Sauna: Ja
Balkon/terrasse: Ja
Tørreskab: Ja
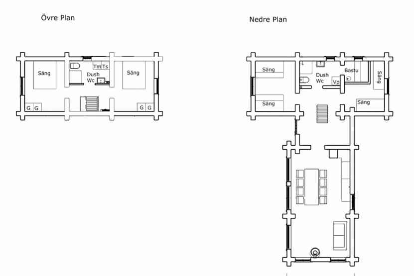
Klockarfjället ligger i Vemdalsskalet. Hytte i 1½ etage, 4 soveværelse, 10 sengepladser, 107 kvm, alrum med køkkenafdeling, 2 brusere, 2 WC, sauna.

Faciliteter

Køkken

Køkkenet indeholder komfur med ovn, mikro, køleskab med fryser, opvaskemaskine.

Badeværelser

Badeværelse 1 = bruser/WC/sauna. Badeværelse 2 = bruser/WC.

Soveværelser

Soveværelse-1 = 1 dobbeltseng. Soveværelse-2 = 1 dobbeltseng. Soveværelse-3 = 1 køjeseng. Soveværelse-4 = 2 køjesenge med 120 cm bred underkøje.

Vigtig info

Husdyr tilladt, rygning ikke tilladt.
Alle i selskabet skal være fyldt 18 år for at bo i boligen. Identifikation vises ved ankomst. Aldersgrænsen gælder ikke børn i selskab med deres forældre, afstand til lift/bakke ca 400 m, Afhængigt af sneforholdene kan afstanden til lift/bakke variere.



Ekstra info

Stue med lille køkkenafdeling, TV, brændeovn (brænde indgår ikke). tørreskab, vaskemaskine, stejl trappe til overetagen, skiopbevaring, balkon/altan (der skovles ikke sne), Havemøbler, 2 parkeringspladser.



Adgang til fri WiFi (med forbehold for eventuelle forstyrrelser hos bredbåndsleverandøren).


Køkken

Komfur med ovn
Køleskab
Fryser : Ja
Opvaskemaskine : Ja
Mikroovn : Ja

Opholdsrum

Pejs/brændeovn : Ja
TV
Wi-Fi : Ja

Badeværelser

Antal bad
Antal toiletter : 2
Sauna : Ja

Ekstra information

M.o.h.
Tørreskab : Ja
Vaskemaskine
Tørretumbler
Balkon/terrasse : Ja
Dyr tilladt : Ja
Indkøb
Ladestation
Parkering

Ekstra information

M.o.h.
Tørreskab : Ja
Vaskemaskine
Tørretumbler
Balkon/terrasse : Ja
Dyr tilladt : Ja
Indkøb
Ladestation
Parkering

Vinterinformation

Lift : 400
Pist/løjpe
Langrend
Ski in/ Ski out