*NY* Trollbäcken 143 U

/ Hundfjället

Antal personer: 8
Antal kvm: 80
Antal soverum: 4
Wi-Fi: Nej
Dyr tilladt: Ja
Pejs/brændeovn: Nej
Antal toiletter: 2
Sauna: Ja
Balkon/terrasse: Nej
Tørreskab: Ja
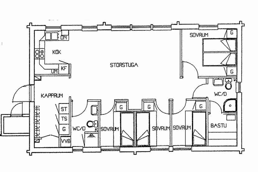
Trollbäcken ligger i Hundfjället. Stuelejlighed, 8 sengepladser, 80 m², alrum med køkkenafdeling, 4 soveværelser, 2 brusere, 2 WC, sauna.

Faciliteter

Køkken

Køkkenet indeholder: elkomfur med ovn, køleskab, frys, opvaskemaskine, microovn.

Badeværelser

Badeværelset-1 = bruse/wc/sauna. Badeværelset-2 = bruse/wc.

Soveværelser

Soveværelse-1= 1 dobbeltseng. Soveværelse-2= 1 køjeseng med 120 cm bred underkøje . Soveværelse-3= 1 køjeseng med 120 cm bred underkøje . Soveværelse-4= 1 køjeseng med 120 cm bred underkøje .

Vigtig info

Husdyr tilladt, rygning ikke tilladt.





Alle personer skal være fyldt 18 år for at kunne bo i opholdsenheden. Der kræves legitimation ved ankomst. Aldergrænse gjælder ikke børn i selskab med formynder. Nærmeste liftanlæg er Hundfjället, Afstand til lift/bakke ca 500-600 meter, Afhængigt af sneforholdene kan afstanden til lift/bakke variere.


Ekstra info

Opholdsstue med køkkenafdeling. TV, tørreskab, 1 højstol, rum til skiudstyr.





Køkken

Komfur med ovn
Køleskab
Fryser : Ja
Opvaskemaskine : Ja
Mikroovn : Ja

Opholdsrum

Pejs/brændeovn : Nej
TV
Wi-Fi : Nej

Badeværelser

Antal bad
Antal toiletter : 2
Sauna : Ja

Ekstra information

M.o.h.
Tørreskab : Ja
Vaskemaskine
Tørretumbler
Balkon/terrasse : Nej
Dyr tilladt : Ja
Indkøb
Ladestation
Parkering

Ekstra information

M.o.h.
Tørreskab : Ja
Vaskemaskine
Tørretumbler
Balkon/terrasse : Nej
Dyr tilladt : Ja
Indkøb
Ladestation
Parkering

Vinterinformation

Lift : 600
Pist/løjpe
Langrend
Ski in/ Ski out