FJÄLLVRÅKSTIGEN 16

/ Högfjället

Antal personer: 8
Antal kvm: 70
Antal soverum: 3
Wi-Fi: Ja
Dyr tilladt: Ja
Pejs/brændeovn: Ja
Antal toiletter: 1
Sauna: Ja
Balkon/terrasse: Ja
Tørreskab: Nej
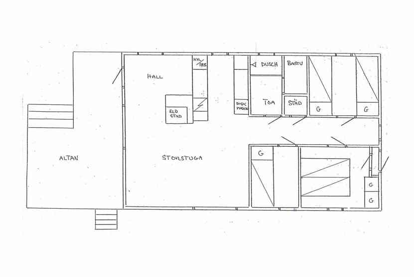
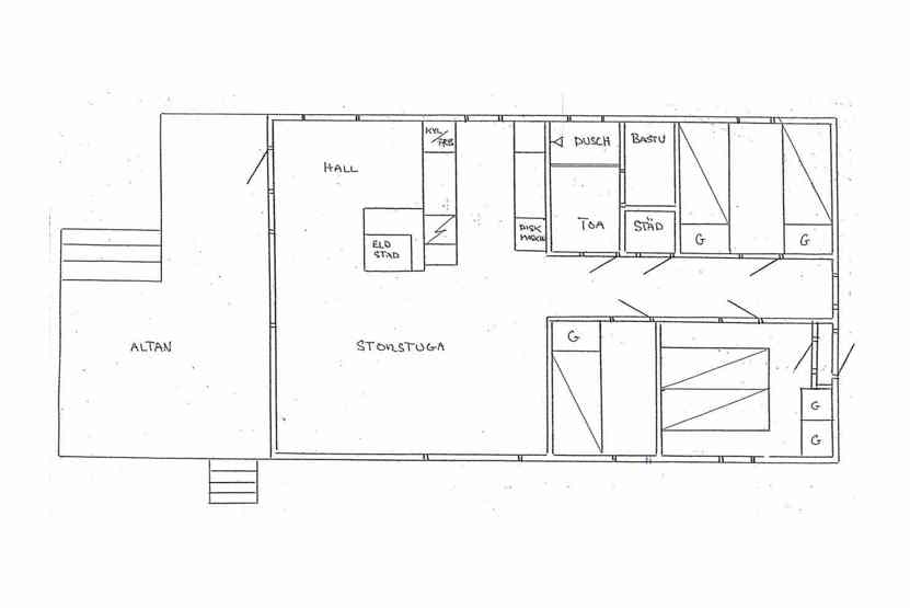
Köarskär ligger i Högfjället. Fritstående hytte, 8 sengepladser, 70 m², 3 soveværelser, alrum med køkkenafdeling, 1 bruser, 1 WC, sauna.

Faciliteter

Køkken

Køkkenet indeholder: elkomfur med ovn, køleskab, frys, opvaskemaskine, microovn.

Badeværelser

Badeværelset-1 = bruse/wc/sauna.

Soveværelser

Soveværelse-1= 1 dobbeltseng. Soveværelse-2= 1 køjeseng. Soveværelse-3= 2 køjesenge.

Vigtig info

Husdyr tilladt, rygning ikke tilladt.





Alle personer skal være fyldt 18 år for at kunne bo i opholdsenheden. Der kræves legitimation ved ankomst. Aldergrænse gjælder ikke børn i selskab med formynder. Nærmeste liftanlæg er Högfjället, Afstand til lift/bakke ca 1 km, Afhængigt af sneforholdene kan afstanden til lift/bakke variere.


Ekstra info

Opholdsstue med køkkenafdeling. TV, åben pejs (brænde indgår ikke), altan (skovles ikke), elbilopladere med type 2 stik, udtag til motorvarmer til bilen forefindes. Kræver specielt stik i bilen.


Adgang til fri WiFi (med forbehold for eventuelle forstyrrelser hos bredbåndsleverandøren).


Køkken

Komfur med ovn
Køleskab
Fryser : Ja
Opvaskemaskine : Ja
Mikroovn : Ja

Opholdsrum

Pejs/brændeovn : Ja
TV
Wi-Fi : Ja

Badeværelser

Antal bad
Antal toiletter : 1
Sauna : Ja

Ekstra information

M.o.h.
Tørreskab : Nej
Vaskemaskine
Tørretumbler
Balkon/terrasse : Ja
Dyr tilladt : Ja
Indkøb
Ladestation
Parkering

Ekstra information

M.o.h.
Tørreskab : Nej
Vaskemaskine
Tørretumbler
Balkon/terrasse : Ja
Dyr tilladt : Ja
Indkøb
Ladestation
Parkering

Vinterinformation

Lift : 1000
Pist/løjpe
Langrend
Ski in/ Ski out