VRÅKEN 16

/ Högfjället

Antal personer: 8
Antal kvm: 60
Antal soverum: 2
Wi-Fi: Nej
Dyr tilladt: Ja
Pejs/brændeovn: Ja
Antal toiletter: 1
Sauna: Ja
Balkon/terrasse: Ja
Tørreskab: Ja
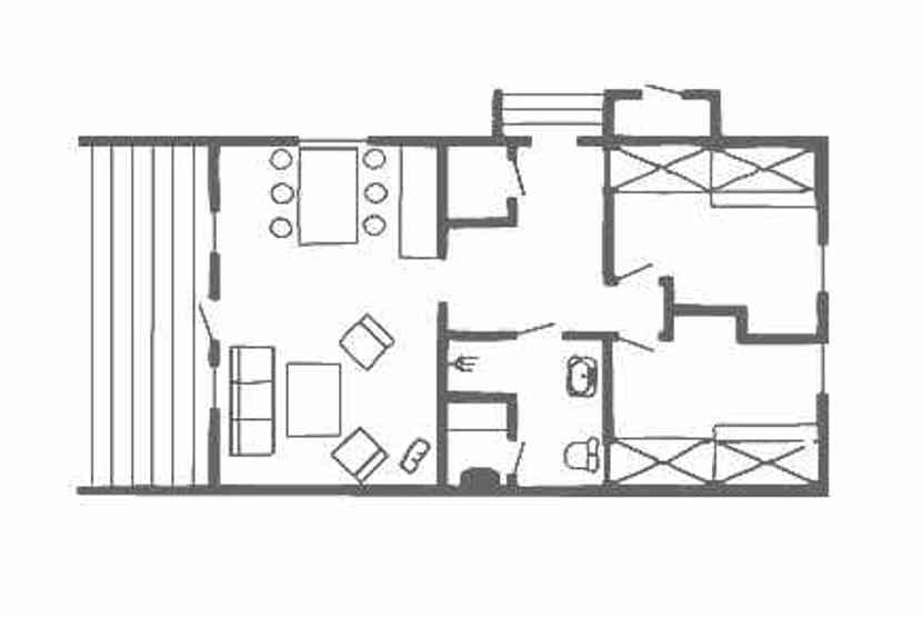
Högfjällsbyn ligger i Högfjället. Fritstående hytte, 8 sengepladser, 60 m², alrum med køkkenafdeling, 2 soveværelser, 1 bruser, 1 WC, sauna.

Faciliteter

Køkken

Køkkenet indeholder: elkomfur med ovn, køleskab, frys, opvaskemaskine, microovn.

Badeværelser

Badeværelset-1 = bruse/wc/sauna.

Soveværelser

Soveværelse-1= 1 køjeseng, 1 køjeseng med 140 cm bred underkøje . Soveværelse-2= 1 køjeseng, 1 køjeseng med 140 cm bred underkøje .

Vigtig info

Husdyr tilladt, rygning ikke tilladt.





Alle personer skal være fyldt 18 år for at kunne bo i opholdsenheden. Der kræves legitimation ved ankomst. Aldergrænse gjælder ikke børn i selskab med formynder. Nærmeste liftanlæg er Högfjället, Afstand til lift/bakke ca 300 m, Afhængigt af sneforholdene kan afstanden til lift/bakke variere.


Ekstra info

Opholdsstue med køkkenafdeling. TV, brændeovn (brænde indgår ikke), tørreskab, rum til skiudstyr.





Køkken

Komfur med ovn
Køleskab
Fryser : Ja
Opvaskemaskine : Ja
Mikroovn : Ja

Opholdsrum

Pejs/brændeovn : Ja
TV
Wi-Fi : Nej

Badeværelser

Antal bad
Antal toiletter : 1
Sauna : Ja

Ekstra information

M.o.h.
Tørreskab : Ja
Vaskemaskine
Tørretumbler
Balkon/terrasse : Ja
Dyr tilladt : Ja
Indkøb
Ladestation
Parkering

Ekstra information

M.o.h.
Tørreskab : Ja
Vaskemaskine
Tørretumbler
Balkon/terrasse : Ja
Dyr tilladt : Ja
Indkøb
Ladestation
Parkering

Vinterinformation

Lift : 300
Pist/løjpe
Langrend
Ski in/ Ski out