Söderåsen 170Ö

/ Lindvallen

Antal personer: 8
Antal kvm: 80
Antal soverum: 4
Wi-Fi: Ja
Dyr tilladt: Nej
Pejs/brændeovn: Nej
Antal toiletter: 2
Sauna: Ja
Balkon/terrasse: Nej
Tørreskab: Ja
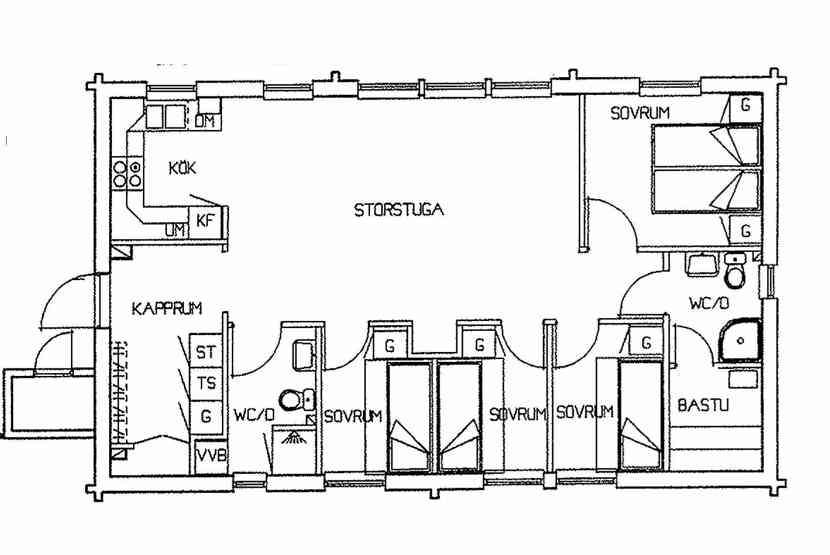
Söderåsen ligger i Lindvallen. 1. sals lejlighed, 8 sengepladser, 80 m², alrum med køkkenafdeling, 4 soveværelser, 2 brusere, 2 WC, sauna.

Faciliteter

Køkken

Køkkenet indeholder: elkomfur med ovn, køleskab, frys, opvaskemaskine, microovn.

Badeværelser

Badeværelset-1 = bruse/wc/sauna. Badeværelset-2 = bruse/wc.

Soveværelser

Soveværelse-1= 1 dobbeltseng. Soveværelse-2= 1 køjeseng med 120 cm bred underkøje . Soveværelse-3= 1 køjeseng med 120 cm bred underkøje . Soveværelse-4= 1 køjeseng med 120 cm bred underkøje .

Vigtig info

Husdyr og rygning ikke tilladt, Obs! Ikke allergisaneret.



Uge 9 (2027) er denne bolig reserveret til dig der er skiløbere i vores skiområde. Det betyder, at du skal bestille SkiPass der gælder for hele opholdet til alle gæster (7 år og ældre) på bestillingstidspunktet.

Alle personer skal være fyldt 18 år for at kunne bo i opholdsenheden. Der kræves legitimation ved ankomst. Aldergrænse gjælder ikke børn i selskab med formynder. Nærmeste liftanlæg er Lindvallen, Afstand til lift/bakke ca 15-300 m, Afhængigt af sneforholdene kan afstanden til lift/bakke variere.


Ekstra info

Opholdsstue med køkkenafdeling. TV, tørreskab, rum til skiudstyr.


I denne indkvartering er SkiStar Free WiFi.


Køkken

Komfur med ovn
Køleskab
Fryser : Ja
Opvaskemaskine : Ja
Mikroovn : Ja

Opholdsrum

Pejs/brændeovn : Nej
TV
Wi-Fi : Ja

Badeværelser

Antal bad
Antal toiletter : 2
Sauna : Ja

Ekstra information

M.o.h.
Tørreskab : Ja
Vaskemaskine
Tørretumbler
Balkon/terrasse : Nej
Dyr tilladt : Nej
Indkøb
Ladestation
Parkering

Ekstra information

M.o.h.
Tørreskab : Ja
Vaskemaskine
Tørretumbler
Balkon/terrasse : Nej
Dyr tilladt : Nej
Indkøb
Ladestation
Parkering

Vinterinformation

Lift : 300
Pist/løjpe
Langrend
Ski in/ Ski out