Vråken 16

/ Högfjället

Antal personer: 8
Antal kvm: 60
Antal soverum: 2
Wi-Fi: Nej
Dyr tilladt: Ja
Pejs/brændeovn: Ja
Antal toiletter: 1
Sauna: Ja
Balkon/terrasse: Ja
Tørreskab: Ja
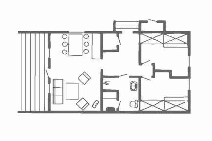
Högfjällsbyn ligger i Högfjället. Fritstående hytte, 8 sengepladser, 60 m², alrum med køkkenafdeling, 2 soveværelser, 1 bruser, 1 WC, sauna.

Faciliteter

Køkken

Køkkenet indeholder: elkomfur med ovn, køleskab, frys, opvaskemaskine, microovn.

Badeværelser

Badeværelset-1 = bruse/wc/sauna.

Soveværelser

Soveværelse-1= 1 køjeseng, 1 køjeseng med 140 cm bred underkøje . Soveværelse-2= 1 køjeseng, 1 køjeseng med 140 cm bred underkøje .

Vigtig info

Husdyr tilladt, rygning ikke tilladt.



Uge 9 (2027) er denne bolig reserveret til dig der er skiløbere i vores skiområde. Det betyder, at du skal bestille SkiPass der gælder for hele opholdet til alle gæster (7 år og ældre) på bestillingstidspunktet.

Alle personer skal være fyldt 18 år for at kunne bo i opholdsenheden. Der kræves legitimation ved ankomst. Aldergrænse gjælder ikke børn i selskab med formynder. Nærmeste liftanlæg er Högfjället, Afstand til lift/bakke ca 300 m, Afhængigt af sneforholdene kan afstanden til lift/bakke variere.


Ekstra info

Opholdsstue med køkkenafdeling. TV, brændeovn (brænde indgår ikke), tørreskab, rum til skiudstyr.





Køkken

Komfur med ovn
Køleskab
Fryser : Ja
Opvaskemaskine : Ja
Mikroovn : Ja

Opholdsrum

Pejs/brændeovn : Ja
TV
Wi-Fi : Nej

Badeværelser

Antal bad
Antal toiletter : 1
Sauna : Ja

Ekstra information

M.o.h.
Tørreskab : Ja
Vaskemaskine
Tørretumbler
Balkon/terrasse : Ja
Dyr tilladt : Ja
Indkøb
Ladestation
Parkering

Ekstra information

M.o.h.
Tørreskab : Ja
Vaskemaskine
Tørretumbler
Balkon/terrasse : Ja
Dyr tilladt : Ja
Indkøb
Ladestation
Parkering

Vinterinformation

Lift : 300
Pist/løjpe
Langrend
Ski in/ Ski out