Vargen 16F

/ Björnen

Antal personer: 10
Antal kvm: 89
Antal soverum: 4
Wi-Fi: Ja
Dyr tilladt: Ja
Pejs/brændeovn: Ja
Antal toiletter: 2
Sauna: Ja
Balkon/terrasse: Ja
Tørreskab: Ja
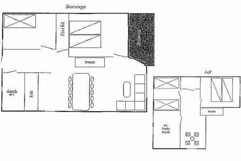
Vargen ligger i Åre Björnen. Lejlighed på første etage i 2 etage, 10 sengepladser, 89 kvm, alrum med køkkenafdeling, 4 soveværelse, 2 brusere, 2 WC, sauna.

Faciliteter

Køkken

Køkkenet indeholder elkomfur med ovn, køleskab med fryser, opvaskemaskine, mikro.

Badeværelser

Badeværelse 1 = bruser/WC/sauna. Badeværelse 2 = bruser/WC.

Soveværelser

Soveværelse-1 = 1 dobbeltseng som kan laves om til to enkeltsenge. Soveværelse-2 = 1 dobbeltseng som kan laves om til to enkeltsenge. Soveværelse-3 = 1 køjeseng med 105 cm bred underkøje og 80 cm bred overkøje. Soveværelse-4 = 1 køjeseng hvor både over og underkøje er 90 cm bred, 1 køjeseng hvor både over og underkøje er 80 cm bred.

Vigtig info

Husdyr tilladt, rygning ikke tilladt.
For at få adgang til boligen skal alle personer være fyldt 18 år. Identifikation vises ved ankomst. Aldersgrænsen gælder ikke børn i selskab med deres forældre, Afhængigt af sneforholdene kan afstanden til lift/bakke variere.



Ekstra info

Stue med køkkenafdeling. TV, brændeovn (brænde indgår ikke), tørreskab, balkon/altan (der skovles ikke sne), skiopbevaring, fælles parkering findes i området. 4 fælles ladestandere (type 2) er tilgængelige mod gebyr.



Adgang til fri WiFi (med forbehold for eventuelle forstyrrelser hos bredbåndsleverandøren).


Køkken

Komfur med ovn
Køleskab
Fryser : Ja
Opvaskemaskine : Ja
Mikroovn : Ja

Opholdsrum

Pejs/brændeovn : Ja
TV
Wi-Fi : Ja

Badeværelser

Antal bad
Antal toiletter : 2
Sauna : Ja

Ekstra information

M.o.h.
Tørreskab : Ja
Vaskemaskine
Tørretumbler
Balkon/terrasse : Ja
Dyr tilladt : Ja
Indkøb
Ladestation
Parkering

Ekstra information

M.o.h.
Tørreskab : Ja
Vaskemaskine
Tørretumbler
Balkon/terrasse : Ja
Dyr tilladt : Ja
Indkøb
Ladestation
Parkering

Vinterinformation

Lift : 30
Pist/løjpe
Langrend
Ski in/ Ski out