Midgard Trysil A211

/ Turistsenteret

Antal personer: 8
Antal kvm: 73
Antal soverum: 2
Wi-Fi: Ja
Dyr tilladt: Nej
Pejs/brændeovn: Nej
Antal bad: 2
Antal toiletter: 2
Sauna: Nej
Ski in / Ski-out: Nej

Midgard Trysil A211, 42  nye veludstyrede lejligheder beliggende Centralt på Trysil Turistsenter. Her er  gåafstand til lift, pist, butikker restauranter og skiskole. Ved Turistsenteret ligger også Radisson Blu Resort Hotel, hvor der findes stort oplevelsesbad, spa, bowling, restauranter bar og for børnene er der legerum, 150 meter til Trysils stor udbud af lifte, piste, butikker, restauranter og skiskole. 
Midgard Trysil lejlighederne ligger i 2 eller 3 etagers huse og er designet til at være moderne lejligheder, men med inspiration hentet fra naturen og fjeldet. Gode varme farver som giver lejligheder hygge og varme, et perfekt sted at slappe af.
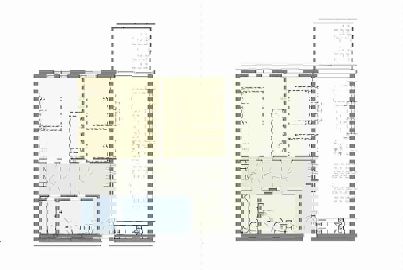
A211 Lejlighed på 1.sal med 8 senge, 73 kvm, 2 soveværelser. Kombineret køkkenafdeling/opholdsstue med TV og spisebord til 8 personer. 2 brusere, 2 WC, badekar, vaskemaskine, tørretumbler. Skiopbevaring, 1 garageplads. 
Afstande: Afhængigt af sneforholdene kan afstanden til lift/bakke variere, skilift 200 meter, langrendsløjper 300 meter.

Køkken: Enheden har komfur med ovn, køleskab, fryser, opvaskemaskine, mikrobølgeovn.

Badeværelser: Bad 1:  Bruser og WC. Bad 2:  Bruser, WC og badekar.

Soveværelser:
Soveværelse 1:
1 dobbeltseng 160 cm bred, 1 køjeseng 80 cm bred. Soveværelse 2: 1 dobbeltseng 160 cm bred, 1 køjeseng 80 cm bred.

Vigtig info: Husdyr og rygning ikke tilladt.
For at kunne bestille denne bolig skal gæsten være fyldt 18 år. Alle i selskabet skal være fyldt 18 år. Gælder ikke børn i selskab med formynder. Den som er ansvarlig for bestillingen skal bo i enheden under hele opholdet. Følgende uger/perioder er denne indkvartering reserveret til dig, der kører alpint i vores skiområde: weekend uge 17 (2026). Det betyder at du skal bestille SkiPass der gælder for hele opholdet til alle gæster (7 år og ældre) på bestillingstidspunktet.

Ekstra info: Opholdsstue med TV. Vaskemaskine, tørretumbler, skiopbevaring, 1 garageplads, elevator findes i huset.
Adgang til fri Wi-Fi (med forbehold for eventuelle forstyrrelser hos bredbåndsleverandøren).


Køkken

Komfur med ovn : Ja
Køleskab : Ja
Fryser : Ja
Opvaskemaskine : Ja
Mikroovn : Ja

Opholdsrum

Pejs/brændeovn : Nej
TV : Ja
Wi-Fi : Ja

Badeværelser

Antal bad : 2
Antal toiletter : 2
Sauna : Nej

Ekstra information

M.o.h.
Tørreskab : Ja
Vaskemaskine : Ja
Tørretumbler : Ja
Balkon/terrasse : Ja
Dyr tilladt : Nej
Indkøb : 300 m
Ladestation : I området
Parkering

Ekstra information

M.o.h.
Tørreskab : Ja
Vaskemaskine : Ja
Tørretumbler : Ja
Balkon/terrasse : Ja
Dyr tilladt : Nej
Indkøb : 300 m
Ladestation : I området
Parkering

Vinterinformation

Lift : 200 m
Pist/løjpe : 200 m
Langrend : 300 m
Ski in/ Ski out : Nej