Mikkelbu

/ Hemsedal Skisenter

Antal personer: 22+2
Antal kvm: 280
Antal soverum: 7
Wi-Fi: Ja
Dyr tilladt: Ja
Pejs/brændeovn: Pejs
Antal bad: 6
Antal toiletter: 7
Sauna: 1
Ski in / Ski-out: Nej

Mikkelbu. Storhytte ligger i Veslestølen hytteområde. Blot 100 m til turistløype (løjpe 11), som fører ned til Hemsedal Skisenter. Her du finder skiudleje, skiskolen, sportsbutik, supermarked, restauranter og bar ved SkiStar Lodge Hemsedal.  

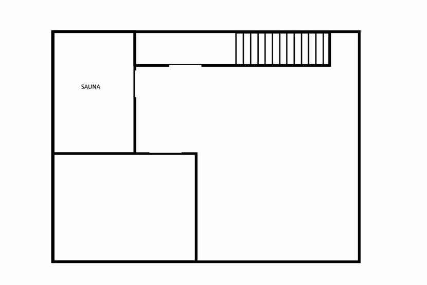
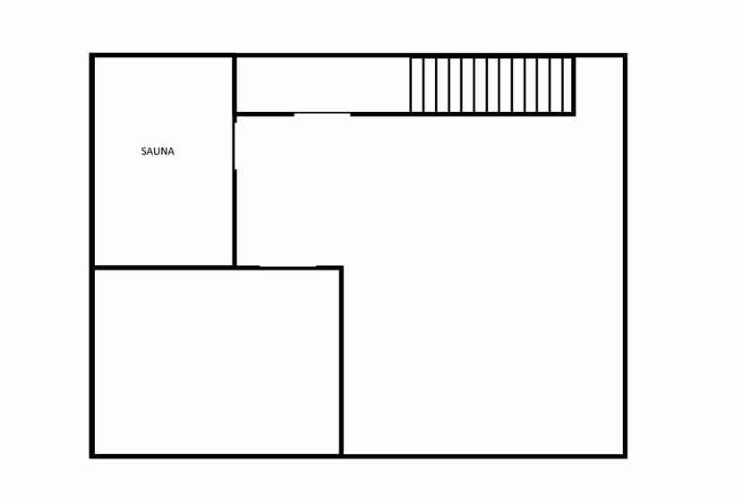
Mikkelbu er en herlig norsk og praktisk indrettede storhytte på 2 etager.
Hytte, 22+2 sengepladser, 280 m², alrum med køkkenafdeling, TV, pejs, 7 soveværelser, 6 brusere, 7 WC, 1 sauna. Tørrerum.
 
Afstand til nærmeste lift 500 meter, nærmeste bakke 150 meter, langrendsløjpe 800 meter. Afhængigt af sneforholdene kan afstanden til lift/bakke variere.

Køkken:
Indeholder bl.a. ovn, køleskab, køleskab m/fryser, fryser, dobbelt opvaskemaskine, mikroovn.

Badeværelser:
Bad 1:
WC, bruser, sauna. Bad 2: WC, bruser. Bad 3: WC, bruser. Bad 4: bruser, WC. Bad 5: WC, bruser. Bad 6: WC, bruser. Bad 7: WC.

Soveværelser:
Soveværelse 1: 1 dobbeltseng. Soveværelse 2: 1 dobbeltseng. Soveværelse 31 dobbeltseng. Soveværelse 4: 1 familie køjeseng med 150 cm bred underkøje. Soveværelse 5: 1 køjeseng med 150 cm bred underkøje. Soveværelse 6: 2 enkeltsenge, 2 dobbeltsenge. Soveværelse 7: 2 enkeltsenge, 2 dobbeltsenge.

Vigtig info: Husdyr tilladt, rygning ikke tilladt. For at kunne bestille denne bolig gæsten være fyldt 18 år. Alle i selskabet være fyldt 18 år. Gælder ikke børn i selskab med en voksen. Den ansvarlige for bestillingen må bo i enheden under hele opholdet. Legitimering ved ankomst. Ved glat føre skal snekæder/pigdæk bruges for at undgå stop og kødannelse.

Ekstra info: Kabel-TV, åben pejs. Tørrerum. Veranda.
Adgang til fri Wi-Fi (med forbehold for eventuelle forstyrrelser hos bredbåndsleverandøren).


Køkken

Komfur med ovn : Ja
Køleskab : Ja
Fryser : Ja
Opvaskemaskine : Ja
Mikroovn : Ja

Opholdsrum

Pejs/brændeovn : Pejs
TV : Ja
Wi-Fi : Ja

Badeværelser

Antal bad : 6
Antal toiletter : 7
Sauna : 1

Ekstra information

M.o.h.
Tørreskab : Ja
Vaskemaskine
Tørretumbler
Balkon/terrasse : Terrasse
Dyr tilladt : Ja
Indkøb : 2000 m
Ladestation : SKiStar Logde Hemsedal. betaling
Parkering

Ekstra information

M.o.h.
Tørreskab : Ja
Vaskemaskine
Tørretumbler
Balkon/terrasse : Terrasse
Dyr tilladt : Ja
Indkøb : 2000 m
Ladestation : SKiStar Logde Hemsedal. betaling
Parkering

Vinterinformation

Lift : 100 m
Pist/løjpe : 100 m
Langrend : 900 m
Ski in/ Ski out : Nej