BAKKEN 5

/ Hemsedal Skisenter

Antal personer: 2+2
Antal kvm: 42
Antal soverum: 1
Wi-Fi: Ja
Dyr tilladt: Ja
Pejs/brændeovn: Nej
Antal bad: 1
Antal toiletter: 1
Sauna: Nej
Balkon/terrasse: Terrasse

Bakken 5. Bekvem, lys og praktisk lejlighed. Ligger med central beliggenhed med 300 m til børneområde i Hemsedal Skisenter. Lejligheden er perfekt til par, venner og lille familie. Adgang til adskillige faciliteter indenfor gåafstand, som restauranter med bar, sportsbutik, skiudlejning, skiskole og supermarked. 

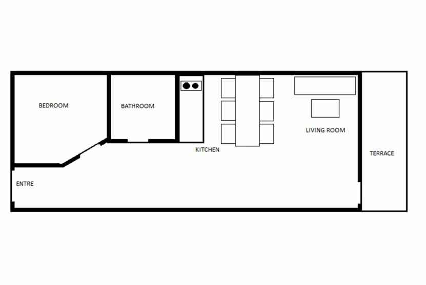
2+2 personers lejlighed, lys og praktisk lejlighed med åben planløsning og højt til loftet. Lejlighed i stueetage, 42 m². 1 soveværelse. Opholdsstue med TV, sovesofa og køkkenafdeling. 1 bruser, 1 WC. Skiopbevaring. 

Nærmeste lift 300 meter, nærmeste bakke 300 meter, langrendsløjpe 400 meter. Afhængigt af sneforholdene kan afstanden til lift/bakke variere.

Faciliteter

Køkken

Køkkenet indeholder bl.a. kogeplade med 2 kogeplader, ovn, køleskab m/fryser, opvaskemaskine.

Badeværelser

Bad 1: WC, bruser.

Soveværelser

Soveværelse-1= 1 køjeseng med 150 cm bred underkøje.

Vigtig info

Husdyr tilladt, rygning ikke tilladt.
Støj fra afterski/natklub og natteliv kan forventes. For at kunne bestille denne bolig gæsten være fyldt 18 år. Alle i selskabet være fyldt 18 år. Gælder ikke barn i selskab med formynder. Den ansvarlige for bestillingen må bo i enheden under hele opholdet. Legitimering ved ankomst. 
Afstand til nærmeste lift/bakke kan være afhængig af natursne.
Afhængigt af sneforholdene kan afstanden til lift/bakke variere.

Ekstra info

1 sovesofa, Kabel-TV. Altan. Skiopbevaring.
Adgang til fri Wi-Fi (med forbehold for eventuelle forstyrrelser hos bredbåndsleverandøren).


Køkken

Komfur med ovn : Ja
Køleskab : Ja
Fryser : Ja
Opvaskemaskine : Ja
Mikroovn : Nej

Opholdsrum

Pejs/brændeovn : Nej
TV : Ja
Wi-Fi : Ja

Badeværelser

Antal bad : 1
Antal toiletter : 1
Sauna : Nej

Ekstra information

M.o.h.
Tørreskab : Nej
Vaskemaskine
Tørretumbler
Balkon/terrasse : Terrasse
Dyr tilladt : Ja
Indkøb : 400 m
Ladestation : Skistar Lodge Hemsedal, betaling
Parkering

Ekstra information

M.o.h.
Tørreskab : Nej
Vaskemaskine
Tørretumbler
Balkon/terrasse : Terrasse
Dyr tilladt : Ja
Indkøb : 400 m
Ladestation : Skistar Lodge Hemsedal, betaling
Parkering

Vinterinformation

Lift : 300 m
Pist/løjpe : 300 m
Langrend : 400 m
Ski in/ Ski out